1. TOP
  2. 施工実例
  3. 敷地29坪の住まいに広がりと開放感を

NEW

#30~39坪 #2階建て #プレミアムパッケージ #シンプルモダン #カフェ風 #ホテルライク #ペットと暮らす #2LDK以下

敷地29坪の住まいに広がりと開放感を

大阪府・U様

DATA.

建物価格

2,500万円~2,999万円

間取り

2LDK以下

階数

2階

延床面積

102.04㎡(30.86坪)

敷地面積

99㎡(29.94坪)

家族構成

ご夫婦

  • 性能を重視!冬暖かく過ごせる快適な住環境

    性能を重視!冬暖かく過ごせる快適な住環境

    以前お住まいだったお家が寒かったため、暖かく快適にお過ごしいただける家を求め、性能を重視されていたU様。ご相談いただいた泉北ホームは、「性能が高く選べる設備もすごく豊富。金額面でも納得できました」とプレミアムパッケージに魅力を感じてご依頼を決めてくださいました。

  • デザインと家事動線を追求した理想の間取り

    デザインと家事動線を追求した理想の間取り

    家づくりでは、あらかじめご夫妻でイメージされていた間取りをもとにご相談いただきました。人通りの多い立地を考慮し、窓はなるべく少なくしたいというご要望を取り入れ、採光を確保する掃き出し窓とバルコニーを一角に設けることで、明るくお過ごしいただけるLDKをご提案いたしました。

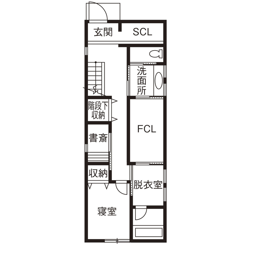
    また、1階では洗面室と脱衣室の間にウォークインクローゼットを配置。脱衣室には室内干しができるようにし、洗濯物を洗って干して片付けるまでを完結できるように設計いたしました。「お打ち合わせに沢山時間をかけられたおかげで、不満が一つもなくどこも大満足です」とのお言葉をいただきました。

画像をクリックで拡大できます。

  • シンプルモダンの外観

    シンプルモダンの外観

    U様がイメージされていたグレー×木目調のデザインでシンプルにまとめた外観。「標準で選択できる素材で、生活感を出さずに美術館のような無機質な感じに仕上げることができました」とU様。汚れにくい外壁材であることもお気に入りポイントです。

    ・・・

    続きを読む

  • 開放感を出した2階リビング

    開放感を出した2階リビング

    出来る限り窓を減らしながらも、明るく広々としたLDKを実現いたしました。床には標準で選べる無垢材を合わせて温もりのある雰囲気に。壁面にはキャットステップをDIYで取り付けられました。「下地材だけ建築時に補強していただきました」とのことでした。

    ・・・

    続きを読む

  • 小上がり収納付きリビング

    小上がり収納付きリビング

    リビングには掃き出し窓とバルコニーを設けて、光を届けて明るくお過ごしいただけるようにご提案いたしました。天井高も上げているので、より広く感じられます。奥にはくつろげる小上がりの多目的スペースも。段差は便利な収納として活用されています。「収納が欲しかったので重宝しています」

    ・・・

    続きを読む

  • モダンな格子壁キッチン

    モダンな格子壁キッチン

    グレーのキッチンには木目調の下がり天井を組み合わせて、モダンな佇まいに。ご夫妻で選ばれた照明もよく映えています。階段との間仕切りには格子壁をコーディネートして、上質なデザインのアクセントにいたしました。視線が抜けて、さらなる開放感が感じられます。

    ・・・

    続きを読む

  • 機能的な造作洗面台

    機能的な造作洗面台

    グレーのカウンターを選んだ広々とした機能的な造作洗面台です。

    ・・・

    続きを読む

  • 家事がラクな脱衣室

    家事がラクな脱衣室

    脱衣室には、室内干しができるアイアンのバーを備え付けました。「浴室乾燥を使ったり、室内干しもできるようになったおかげで、外で干すことがなくなりました」

    ・・・

    続きを読む

  • 動線便利なウォークインクローゼット

    動線便利なウォークインクローゼット

    洗面室の隣に続く、大容量のウォークインクローゼット。帰宅時の着替えや、洗濯物の片付けなど動線がとても便利で使いやすいとU様にお喜びいただいております。

    ・・・

    続きを読む

  • 在宅に最適な書斎

    在宅に最適な書斎

    在宅勤務が多いことから、ご希望されていた書斎を実現。グレーのクロスでまとめて落ち着ける雰囲気にいたしました。

    ・・・

    続きを読む

  • 格子壁の1階階段

    格子壁の1階階段

    2階と同様に、1階の階段部分も仕切り壁に格子を採用。開放感が生まれ、個性が感じられる印象的な佇まいです。

    ・・・

    続きを読む

  • 大容量のシューズクローゼット

    大容量のシューズクローゼット

    玄関先には広々としたシューズクローゼットも配置いたしました。

    ・・・

    続きを読む

お家づくりをサポートいたします。
お気軽にご相談ください。

お電話でのお問い合わせ

0120-36-6668

(本社)

営業時間:10時-18時 / 年中無休(年末年始を除く)

番号タップで発信できます

WEBからのお問い合わせ
ご来場予約・カタログ請求はこちら

お問い合わせ一覧
OPEN CLOSE
  • 1階

    1階

  • 2階

    2階

PREV
NEXT